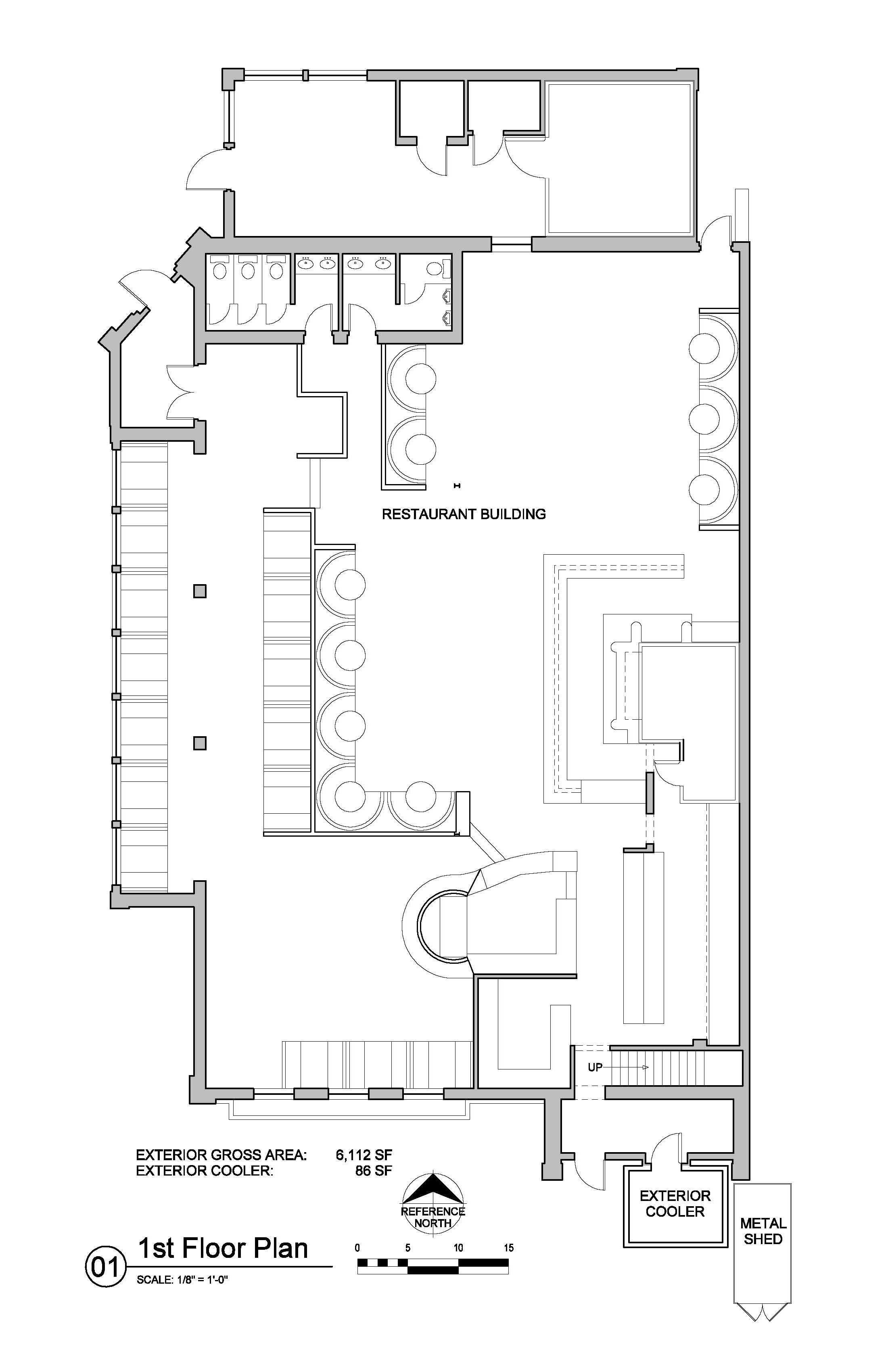
BUILDING MEASUREMENTS & AS-BUILT DRAWINGS

as-built
Contact Mark Devine  (214) 438-0100
mark@bwmtexas.com
6116 North Central Expressway, Suite 110
Dallas, TX 75206